Set within extensive, secluded grounds, this remarkable Edwardian houseboat occupies one of the largest residential plots on Taggs Island and enjoys uninterrupted views both upstream and downstream, as well as across to the picturesque East Molesey bank.
Dating from around 1903, the houseboat is built on a solid concrete hull, providing a robust foundation.
The superstructure now requires sympathetic restoration to return it to its former splendour or an opportunity to create something new.
With the possibility of mooring an entirely new houseboat, crafting a bespoke river home on this substantial plot (subject to the usual consents).
The garden is equally impressive: private, mature, and expansive, complete with a large workshop and two storage sheds.
Situated at the end of the Island, the property enjoys peace and seclusion, accessed directly via the beautifully maintained sunken garden, a shared space for the exclusive use of residents.
Resident’s parking is also just a short walk away for ease of access.
Taggs Island itself is a celebrated and unique community, famed for its tranquillity, natural beauty, and sense of escape from city life- while remaining just moments from Hampton Court, East Molesey, and excellent connections into Central London.
Islanders enjoy the rare privilege of a residential mooring paired with parking, private gardens and landscaped communal spaces, making this one of the most desirable islands on the Thames.
It is the only island on the non-tidal Thames accessible by car.
Opportunities of this kind are rarely available.
Whether restoring the Edwardian houseboat or creating a brand-new floating home, this is an extraordinary chance to secure a slice of riverside history and lifestyle on Taggs Island.
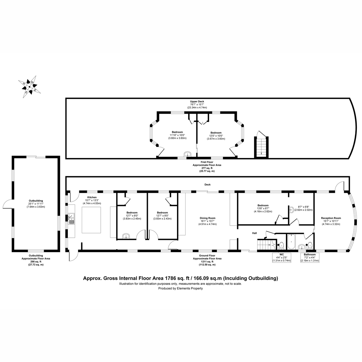
Floor Plan
Approximate Area: 1786 sq. ft
Hover with your mouse on the Floor Plan to zoom.
Floor Plans are for illustration purposes only, appliances and fittings may not be exactly to scale.


























